Зубодолбежный станок модели 5М150 с ЧПУ
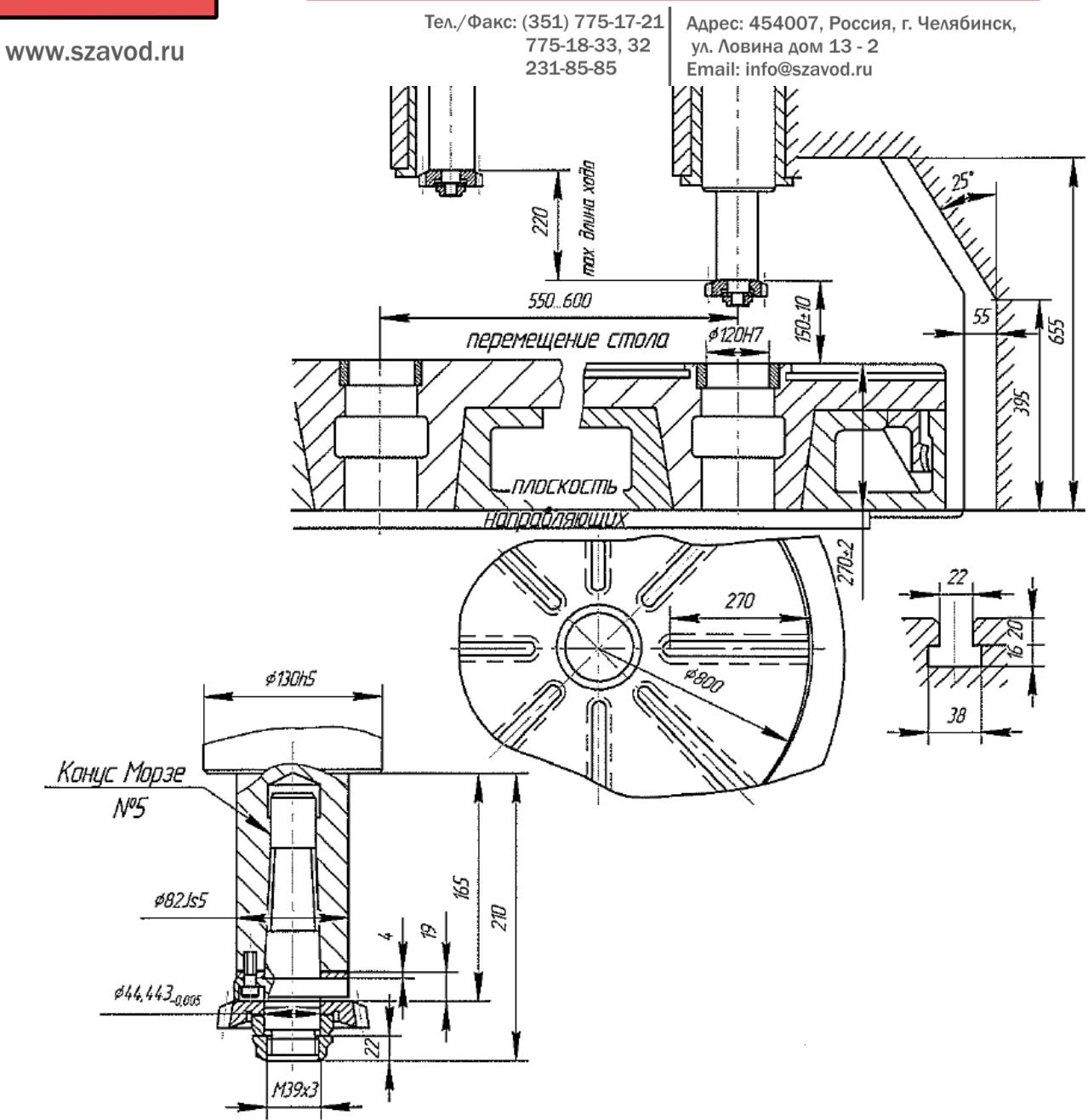
Зубодолбёжный станок 5М150 предназначен для нарезания зубьев на цилиндрических шестернях внутреннего и наружного зацепления, как с открытыми так и закрытыми венцами (блок-шестерни) с максимальным диаметром 800мм.

Основные технические характеристики
| Класс точности | Н |
| Наибольший диаметр устанавливаемого изделия, мм | 800 |
| Наибольшая ширина нарезаемого венца, мм | 200 |
| Наибольший диаметр нарезаемого зубчатого венца, мм: | |
| - наружного зацепления | 800 |
| - внутреннего зацепления | 1000* |
| Модуль нарезаемых зубчатых колес: | |
| - наименьший | 1 |
| - наибольший | 12 |
| Диаметр рабочей поверхности стола, мм | 800 |
| Наибольший номинальный делительный диаметр долбяка, мм | 200 |
| Конец шпинделя для крепления инструмента (отверстие-конус) | Морзе 5 |
| Расстояние от нижней плоскости основания станка до рабочей поверхности стола, мм | 870 |
| Ширина паза в столе | 22Н11 |
| Расстояние между верхней плоскостью стола и торцем шпинделя, мм: | |
| - наименьшее | 155 |
| - наибольшее | 355* |
| Наибольший ход шпинделя, мм | 220 |
| Расстояние от оси шпинделя до оси стола, мм: | |
| - наименьшее | 0 |
| - наибольшее | 700 |
| Пределы чисел двойных ходов шпинделя в мин. | 33…212 |
| Пределы круговых подач при диаметре инструмента D100, мм/дв.х. | 0,2…1,5 |
| Пределы радиальных подач, мм/мин | 0,5…5,0 |
| Скорость ускоренного перемещения стола, мм/мин | 205 |
| Частота вращения стола, об/мин | 1,7 |
| Частота вращения шпинделя инструмента, об/мин | 3 |
| Питающая сеть тип 3РЕN (3PE+N) | |
| - напряжение, В | 380В±10% |
| - частота тока, Гц | 50Гц±2% |
| Потребляемая мощность, кВт | 17 |
| Габаритные размеры полуавтомата, мм: | |
| - длина | 3150 |
| - ширина | 1780 |
| - высота | 3300 |
| Масса, кг | 10450 |
Технические особенности
Управление
Логика работы станка построена на базе современного контроллера фирмы OMRON. Пускорегулирующая аппаратура фирмы Schneider Electric. На встроенном дисплее можно производить предварительную настройку станка, узнать о текущем состоянии конечных выключателей, гидравлики.
Пульт управления:
![]()
|
![]() |
На станке применен интерфейс "Человек-Машина". Переналадка станка производится автоматически, путем ввода параметров детали. На дисплее станка можно задать любое количество циклов, глубину и скорость радиального врезания, фиксировать точку загрузи и выгрузки изделия. В режиме резания, производится индикация глубины врезания, время обработки детали.
Ось вращения долбяка и ось вращения стола имеют собственные высоко-моментные сервоприводы с высокой точностью позиционирования (Абсолютный датчик 16 Бит). Перенастройка станка происходит путем задания параметров обработки на дисплее.
Кинематическая схема станка

Радиальная подача
В приводе радиальной подачи стола применен следящий привод с высокоточным планетарным редуктором с большой редукцией и беззазорная шарико-винтовая пара. Позиционирование стола осуществляется по цифровые линейки фирмы Baluff (Германия), с разрешением 1 мкм. Класс защищенности линейки IP67 (Влага-пыле защищенная). Cервопривод ф. Омрон. Спиральное движение радиальной подачи позволяет на 20-30% повысить производительность обработки или увеличить стойкость режущего инструмента.
С помощью электронного маховичка можно с высокой точностью перемещать стол.
Главный привод
За счет встройки частотного преобразователя и нового главного двигателя можно глубоко регулировать число двойных ходов шпинделя. (Ранее регулировка числа двойных ходов производилась за счет смены шестерней и трехскоростного двигателя).
Станина
Шлифованные направляющие станины – шлифуются, все клинья и планки у станка подогнаны по пятну контакта.
Изготавливается новая защита. Станок соответствует нормам точности ГОСТ 658-89. Класс точности Н
Эскиз рабочего пространства

Дополнительная информация
Зубодолбежные станки:
Зубодолбежный станок 5А140
Зубодолбежный станок 5М150
Зубодолбежный станок 5М161




