Зубодолбежный станок модели 5А140П с ЧПУ
Станок предназначен для высокоточной обработки цилиндрических зубчатых колёс внутреннего и наружного зацепления методом обкатного долбления дисковым долбяком. Станки обеспечивают формирование эвольвентного профиля зуба за счёт кинематически точного согласованного движения инструмента и заготовки, что позволяет получать зубчатые колёса с высокой точностью по шагу, профилю и направлению линии зуба

Описание кинематической схемы
Станок 5А140Ф3 станок оснащен цифровой гитарой деления (Традиционная механическая гитара деления со сменными шестернями отсутствует): вращение штосселя долбяка - ось Y и вращение стола - Ось Z имеют собственные высокомоментные серводвигатели, синхронное движение осей обеспечивает специальный модуль движения.

В цепь главного привода (возвратнопоступательное движение штосселя - Ось А) встроен асинхронный электродвигатель с частотной регулировкой числа двойных ходов режущего инструмента.
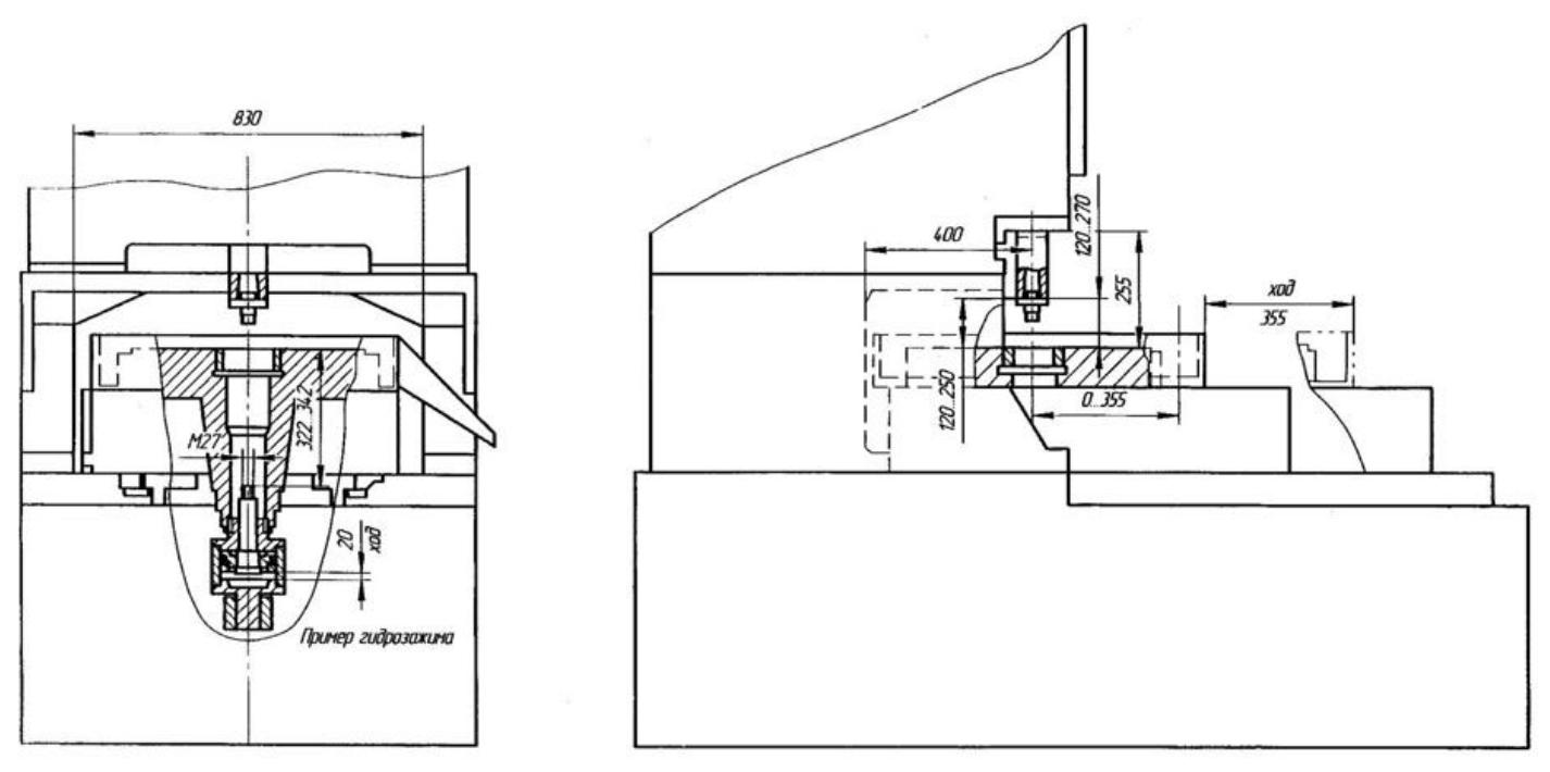
Ось Х - Радиальное перемещение стола оснащена ШВП класса точности IT5 и серводвигателем, в качестве обратной связи используется линейка с точностью позиционирования 1мкм.
Спиральное движение радиальной подачи позволяет на 20-30% повысить производительность обработки или увеличить стойкость режущего инструмента.
Оси ручной настройки: С – Смещение стойки A' – Настройка высоты рабочей зоны и величины хода штосселя.
Управление
Станок 5А140 оснащен ЧПУ - переналадка станка производится автоматически, путем ввода параметров детали. На дисплее станка можно задать любое количество циклов, глубину и скорость радиального врезания, фиксировать точку загрузи и выгрузки изделия. В режиме резания, производится индикация глубины врезания, время обработки детали. Возможность хранения в памяти устройства ЧПУ до 100 различных наладок.

Основные технические данные
| Наибольший делительный диаметр обрабатываемого зубчатого колеса при наружном и внутреннем зацеплении | 500 мм |
| Наибольшая ширина нарезаемого венца | 100 мм |
| Наибольший модуль | 8 |
| Диаметр рабочего стола | 560 мм |
| Базирующее отверстие в столе или фланце шпинделя изделия | 110 мм |
| Перемещение стола относительно оси инструмента | 355 мм |
| Конец шпинделя для крепления | отверстие |
| инструмента | конус Морзе 5 |
| Расстояние между зеркалом стола и торцом шпинделя инструмента | |
| Наименьшее | 120 мм |
| Наибольшее | 270* мм |
| Наибольший ход шпинделя (инструмента) | 125 мм |
| Перемещение шпинделя | 150 мм |
| Пределы чисел двойных ходов | 55-560 В мин |
| Габариты станка | Длина 1975 мм |
| Ширина 1690 мм | |
| Высота 2510 мм | |
| Вес станка | 7500 кг |
Станок 5А140Ф3 соответствует нормам точности по ГОСТ 658-89.
Наладочные установки (Эскиз)

Рабочий стол (Эскиз)

Дополнительная информация
Зубодолбежные станки:
Зубодолбежный станок 5А140
Зубодолбежный станок 5М150
Зубодолбежный станок 5М161